Breteuil logo
1 490 000 €12 314 € / m2

Paris 15èmeFrance

Sèvres-Lecourbe

121 m²

3 chambres

Honoraires charge vendeur

Charges annuelles 4575

Copropriété - 12 lots

Pas de procédure en cours

Paris 15èmeFrance

Sèvres-Lecourbe

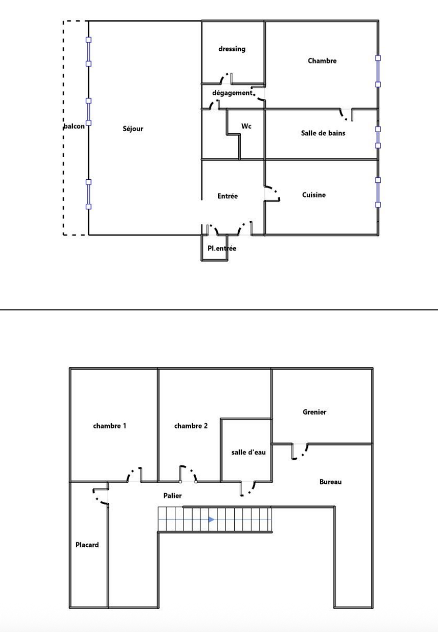
Agréable villa à proximité immédiate des commerces, des transports et des écoles de renom. Immeuble ancien en pierre et brique aux élégantes parties communes et bénéficiant des services d'un gardien, appartement de type duplex à l'esprit maison de 101 m² loi Carrez et 142 m² au sol, situé au 5ème et dernier étage desservi par ascenseur, en très bon état, au charme contemporain et disposant d'une très belle hauteur sous plafond, d'une agréable luminosité, d'un balcon filant avec vue sur la tour Eiffel ainsi que d'un excellent plan. Entrée, vaste double réception jouissant d'une grande hauteur sous plafond et du charme des poutres, cuisine séparée, chambre parentale (dressing et salle de bains), 2 chambres d'enfant au second niveau, bureau et espace télévision en mezzanine, salle d'eau, toilettes séparées, nombreux rangements dont un grenier de belle taille. Cave.
DPE D

Détail des pièces

Prestations immobilières

  • Ascenseur
  • Cuisine séparée
  • Proximité commerces

Réglementation immobilière

  • Honoraires charge vendeur
  • Nombre de lots dans la copropriété 12
  • Pas de procédure en cours
  • Les informations sur les risques auxquels ce bien est exposé sont disponibles sur le site Géorisques : www.georisques.gouv.fr
Graphique émission gas à effet de serreD
Graphique diagnostic performance énergétiqueD