Breteuil logo
1 290 000 €10 750 € / m2

Paris 15èmeFrance

Saint Charles- Boucicaut

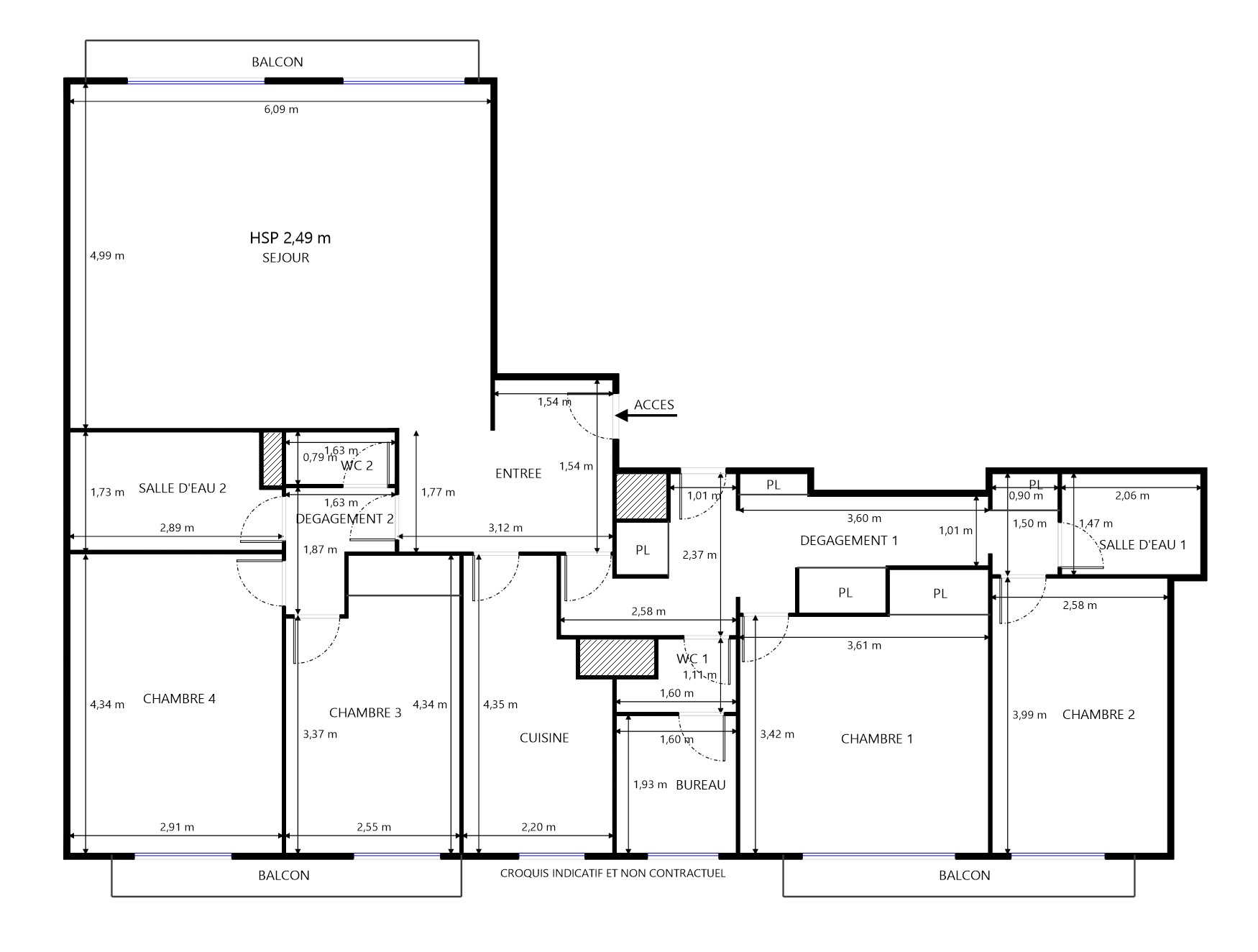
120 m²

4 chambres

Honoraires charge vendeur

Charges annuelles 6201

Copropriété - 20 lots

Pas de procédure en cours

Paris 15èmeFrance

Saint Charles- Boucicaut

Immeuble des années 80 de bonne facture, aux parties communes bien entretenues, idéalement situé à deux pas du métro Boucicaut et des commerces de l'avenue Félix-Faure, appartement familial au 3ème étage desservi par ascenseur, bien distribué et doté d'une vue complètement dégagée. Entrée, double séjour ensoleillé orienté sud-est, cuisine séparée, 4 chambres au calme sur jardin, 2 salles de bains, 2 toilettes, buanderie (ou bureau). Bien divisible. 2 caves. 2 emplacements de parking en supplément au prix de 50 000€ (25 000€ chacun). Exclusivité Breteuil.

Détail des pièces

Prestations immobilières

  • Ascenseur

Réglementation immobilière

  • Honoraires charge vendeur
  • Nombre de lots dans la copropriété 20
  • Pas de procédure en cours
  • Les informations sur les risques auxquels ce bien est exposé sont disponibles sur le site Géorisques : www.georisques.gouv.fr
Graphique émission gas à effet de serreC
Graphique diagnostic performance énergétiqueC